FLYTTBARA BYGGNADER FÖR PERMANENT ELLER TEMPORÄR UPPSTÄLLNING
HYR – KÖP – LEASA
Återbruk är det nya nya! Prismässigt så ligger de flesta byggnaderna på mellan 1.000-3.000kr/kvm ex moms. Nedan finner ni de objekt som vi har till salu för tillfället. De går att bruka som beskrivningarna anger, alternativt att byggas om till annat användningsområde. Just nu har vi ett stort urval, över trettio bra objekt. Vi kan normalt ombesörja flytt av byggnaderna till självkostnadspris. Kontakta oss för mer info. Flera av objekten kan ni dessutom välja att hyra eller leasa, kontakta oss för mer info. Scrolla ner för att se ett stort urval av det vi har till salu just nu!
Vår blocketbutik hittar ni här: https://www.blocket.se/shop/modulhuset-i-sverige-ab?
S4376 Kontor, skola el bostad 158kvm. Fin byggnad från 2011 med vattenburen golvvärme och låga U-värden gör att den klarar dagens energikrav. Innerhöjd 2.7m. Stort öppen sal, ett par mindre rum, pentry, 3 WC/HWC mm. Byggnaden består av fem enheter. Demontage, inplastning för transport och kranlyft på bil ingår i priset. Transport o montage ombesörjs till självkostnad. Passa på att göra ett riktigt fynd. Kontakta oss för mer info. Plan- och fasadritning hittar ni här: S4376 plan- o fasad Ett utkast på planlösning för liknande byggnad bifogas här: S6200.501
S4354 Nästan ny byggnad, förskola, kontor el butik mm 343kvm i nyskick. By år 2018. Innerhöjd 2.7m. Vattenburen värme. Även perfekt som kontor, föreningslokal, skola mm mm. Passa på och var först på denna fina byggnad, ett tillfälle som sällan återkommer. Säljes inkl. demontering, inplastning för transport och kranlyft på bil. Montage kan ombesörjas till självkostnad och fast pris. Klicka här för detaljerad plan- och fasadritning vad som ingår: S4354 plan- o fasad
S4371 Attefallshus 27kvm Nyrenoverad 2024. Yttermått ca8.5 x 3.6m. Idealisk som gästhus, tonårsboende eller hemmakontor t ex. Vardagsrum med plats för soffa och TV-hörna, kök, sovrum med plats för 180cm dubbelsäng och förvaringsmöjligheter samt badrum med dusch, tvättmaskin och förbränningstoalett (går att byta till vanligt WC då avlopp redan är förberett. Ett komplett boende i miniformat – fräscht, funktionellt och flexibelt. Finns i Uppsala. Pris: 190.000kr
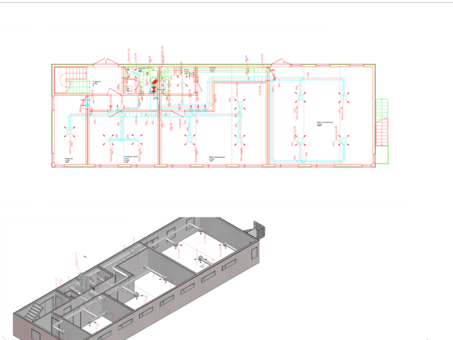
S4365 Byggnad 1.400kvm (4x350kvm) Byggnad i toppskick från 2007. Byggnaden är delad i fyra delar om vardera 350kvm. Säljes komplett eller i delar. Var del består av 12 flyttbara volymelement / moduler om 12.1×3.6m samt trapphus. En rejäl och välisolerad konstruktion för permanent bruk BYA: 2x350kvm (2ggr 12.1 x 29m) Innerhöjd: 2.7m Storlek på varje modul (32st): 12.1 x 3.6m By år: ca 2007. Löpande mkt välunderhållen. FTX-aggregat i var del, tot fyra st. Utöver stora salar, grupprum och kontor finns även bl a 7st kök, 22stWC/RWC, städutrymmen, förråd mm. Byggnaden används som förskola fram till demontage 2026 vilket borgar för en välunderhållen byggnad. Säljes inkl demontage, inplastning för transport och kranlyft på bil. Ev kan byggnaden hyras ut. Vi kan ombesörja transport och montage till självkostnad. Byggnaden är byggd för permanent (alt. temporär uppställning) bruk. Mycket hög standard och byggnadskvalitet. Inte att jämföra med enklare byggbodar el liknande. Klicka här för planritning 1: S4365 plan 1 och här för planritning 2: S4365 plan 2
S4364A 220kvm samt S4364B 265kvm Dessa två fina byggnader säljes separat eller tillsammans. Skola, kontor, boende el föreningslokal t ex. Fem resp. sex moduler á 12.1×3.6m. Innerhöjd: 2.7m. Säljes inkl demontage, inplastning för transport och kranlyft på bil. Bilder kommer inom kort. Klicka här för planritningar: S4362A planritning och S4362B planritning
S4366 Skolbyggnad/kontor mm i två plan 2x510kvm Fantastisk, komplett byggnad för skola, kontor mm. 6 stora salar, flertalgrupprum, kontor, två kök, 10 WC/RWC mm. Klicka här för ritningar: S4366 plan- o fasadritn
- Modulbyggnad
- Modulhus
- Fina Kontorsmoduler
S4271 Lägenhetsmoduler 14st lägenheter á ca 25kvm BOA i två plan, 7+7. Yttermått: ca 8.6 x 3.3m Innerhöjd: ca 2.4m Varje lägenhet har eget badrum med dusch, WC, handfat och förberett för tvättmaskin. Trevligt kök i vinkel med spis, ugn, mikro, kyl o frys mm. Bra utrymme för matplats, två sängar mm. Fler bilder, ritningar och info mailas till intresserade. Byggnaden är byggd för permanent (alt. temporär uppställning) bruk. Mycket hög standard och byggnadskvalitet. Välisolerad. Inte att jämföra med enklare byggbodar el liknande. Klicka här för planritning: S4245 14st
- Boendemoduler Karlberg
- Fasad lägenhetsmodul Karlberg
- Entre studentlägenhet Karlberg
- Kök platsboende Karlberg
- Badrum förberett för tvättmaskin
- Plats för upp till två våningssängar
S4375 Bostad, kontor, skola 182kvm (12.1 x 15m) Innerhöjd: 2.7m Storlek på varje modul (4st): ca12.1 x 3.6m Säljes inkl demontage, inplastning för transport och kranlyft på bil. Vi kan ombesörja transport och montage till självkostnad. Byggnaden är byggd för permanent (alt. temporär uppställning) bruk. Mycket hög standard och byggnadskvalitet. Inte att jämföra med enklare byggbodar el liknande.
- Bygga kontorsbyggnad
- Bygga hus
- Kontorsmoduler
- Bygga bostadshus
S4375 Bostad, kontor, skola 182kvm (12.1 x 15m) Innerhöjd: 2.7m Storlek på varje modul (4st): ca12.1 x 3.6m Säljes inkl demontage, inplastning för transport och kranlyft på bil. Vi kan ombesörja transport och montage till självkostnad. Byggnaden är byggd för permanent (alt. temporär uppställning) bruk. Mycket hög standard och byggnadskvalitet. Inte att jämföra med enklare byggbodar el liknande.
- Bygga kontorsbyggnad
- Bygga hus
- Kontorsmoduler
- Bygga bostadshus
S4342 Kontorsbyggnad i två plan, 2 x 220kvm. By år 2010. Mycket fin invändigt, se bilder. 12-14 kontor, konferensrum, kök, entré med WC/RWC, städutrymme mm. Luft/luft-värmepumpar samt Swegon luftbehandlingsaggregat. Invändig höjd 2.4m. Fabrikat: Max moduler. Vi kan ombesörja flytt till självkostnad. Klicka här för planritning: S4342 planritning
S4341 Boende- eller kontorsbyggnad om 535kvm. By år 2011. Bra och välskött byggnad bestående av ca 12 rum, flera mindre och större samlingsrum, mottagningskök, separat utrustat diskrum, ytterligare två kök, 10st WC/RWC vissa m dusch, tekniskt utrymme mm mm.
- S4341 planritning
- S4341 fasader
S4336 Skol-/kontorsbyggnad 530kvm. Byggnad i toppskick 12.1 x 44m. Innerhöjd 2.7m. Tolv enheter som är redo att flyttas till ny plats. Sex större rum om 57-60kvm, flera grupprum, entréer, elva WC/RWC. Säljes, eller ev uthyres, inkl. demontage, inplastning för transport och kranlyft på bil. Vi kan ombesörja flytt till självkostnad. Klicka här för fasadritning: S4336 fasaderoch här för planritning: S4336 plan
S4335 Skol-/kontorsbyggnad 357kvm. Fin byggnad med bra innerhöjd 2.7m. Yttermått 12.1 x 29.5m. By år: 2008. En stor, fin byggnad bestående av åtta enheter som relativt enkelt byggs samman igen på ny plats. Vi kan ombesörja flytt till självkostnad. Klicka här för planritning: S4335 plan och här för fasader: S4335 fasad
S4304 Boendemoduler styckevis. 2018. Vi har för omgående leverans 108st boendebodar á 15kvm, tot 1.620kvm samt tillhörande servicebodar. Varje lägenhet har eget badrum och pentry. Yttermått 6.2 x 2.45m. Byggnaderna är i två plan och i mkt fint skick. De passar t ex som elevboende, arbetsplatsboende, vandrarhem el liknande. Vi kan ombesörja flytt till självkostnad. Fast pris inkl. demontage, färdiga att lasta: 128.000kr/lgh ex moms. Det finns även välutrustade tvättstugor, torkrum, WC/dusch-moduler. Beskrivning klickar ni för här: S4304 108lgh pres Se vidare för planritning: S4304 plan- o fasad och här för dimensioner: S4304 dim
S4331 Personalboenden 244 rum. Personal- eller elevboende. Sju byggnader med 28 till 72 rum per byggnad, totalt 244 rum. Alla möblerade rum om ca 9kvm har eget badrum med dusch, handfat och WC. Gemensamma utrymmen, matplats/kök, tvättstugor mm. Säljes komplett eller enskilda byggnader styckevis. Dessa står nu i Göteborg och är redo för ny plats. Vi ombesörjer flytt till självkostnadspris. Läs mer här: S4331 A-G beskrivn. Klicka för större bilder nedan.
S4330 Evakueringslägenheter. 18st evakueringslägenheter från 2021. Sparsamt använda. Storlek pålägenheterna är ca 32kvm. Kök, allrum, sovrum och wc. Säljes eller uthyres. Se ritning 1 här: S4330 planritn. 1:3
S4304 Boendemoduler. 2018. Vi har för omgående leverans 108st boendebodar á 15kvm, tot 1.620kvm samt tillhörande servicebodar. Varje lägenhet har eget badrum och pentry. Yttermått 6.2 x 2.45m. Byggnaderna är i två plan och i mkt fint skick. De passar t ex som elevboende, arbetsplatsboende, vandrarhem el liknande. Vi kan ombesörja flytt till självkostnad. Beskrivning klickar ni för här: S4304 108lgh pres Se vidare för planritning: S4304 plan- o fasad och här för dimensioner: S4304 dim
S4301: Skolbyggnad 352kvm. 2009. 12.1 x 29.4m. Byggnaden består av åtta enheter där varje modul är 12.1 x 3.6m. Innerhöjd 2.7m. Fyra klassrum, fyra WC, en RWC m dusch, grupprum, personalrum, kök, städ mm. Klicka här för att se planritning: S4301 planritning och här för fasad: S4301 fasadritning
S4318: Platskontor / övernattning 60kvm. Pris: 250.000kr ex moms
S4317: Bostadsbyggnad om 43kvm. Pris: 380.000kr ex moms
S4287: Skolbyggnad/kontor m kök om 400kvm. 12 x 33m. Innerhöjd 2.7m. Byggnaden består av nio enheter och kan även köpas i mindre delar. Varje enhet är 3.6×12.1m. Mkt fin byggnad med flertal stora salar,kontor, personal, grupprum, hallar, WC, förråd mm. Säljes inkl demontage och lastning på bil senast 15 september. Klicka här för ritningar o skisser: S4287 100 och S4287 200
BYGG MED LÖSA VOLYMELEMENT S5500, S5600 eller S5700 nedan:
S5700 C20: Moduler 9.6 x 3.06m. Innerhöjd 2.7m. Dessa säljer vi styckevis till t ex kontor, skola, föreningslokal, boenden, fritidshus mm mm. Dessa ställs t ex på torpargrund/balkgrund. Kryputrymmet under gör det lätt att dra VA, el och övrig media till valfri plats i den färdiga byggnaden. Produktblad: S5700 C20 infoblad 1.0
S5600 KLOSS: Moduler 12.1 x 3.6m. Innerhöjd 2.7m Dessa säljer vi styckevis till t ex kontor, skola, föreningslokal, boenden, fritidshus mm mm. Dessa ställs på t ex en torpargrund/balkgrund. Kryputrymmet under gör det lätt att dra VA, el och övrig media till valfri plats i den färdiga byggnaden. Produktblad: S5600 Modulhuset Kloss 1.0
S5500 C10: Moduler 9 x 3m. Innerhöjd 2.4m. Dessa säljer vi styckevis till t ex platskontor, föreningslokal, boenden, fritidshus mm mm. Dessa ställs t ex på torpargrund/balkgrund. Kryputrymmet under gör det lätt att dra VA, el och övrig media till valfri plats i den färdiga byggnaden. Produktblad: S5500_C10
Boendemoduler 44 rum mm, 806m2: Byggnaderna består av 32 moduler á 8.4 x 3m. 22 moduler med två möblerade rum i varje inkl. dusch, wc, tvättställ. 8 servicemoduler med omklädningsrum, dusch, bastu, WC, tvättstuga, sällskapsrum mm. 2 trappmoduler. Byggnaderna är i två plan och är i mycket fint skick, vi har ett antal till salu. Passar till ex elevboende, arbetsplatsboende, vandrarhem el liknande. Vi har både begagnade och nytillverkade.Vi kan ombesörja flytt av byggnaden. Vi tillverkar även nya i samma modell eller efter era önskemål. Se vidare för planritning: N800riggritning
Beg. byggnader till salu just nu, se ref nedan:
Övriga byggnader:
Kontakta oss gärna om ni har specifika önskemål på beg. skol- och förskolebyggnader, olika varianter av boendemoduluppställningar, kontor, arbetsbodar eller annat.
***SÅLD***S4367 309kvmMycket fin byggnad, bestående av 7 volymelement för lätt flytt. En rejäl och välisolerad konstruktion. Kontor, föreingslokal, skola, bostad? BYA: ca309kvm (12.1 x 25.4m) Innerhöjd: 2.7m Storlek på varje modul (12st): ca12.1 x 3.6m Idag stora, fina rum, kök, matrum, flera grupprum, kontor, entreèr, 5st WC/RWC mm. Klicka här för plan- o fasadritning: S4367 plan- o fasadritn
***SÅLD***S4357 Skolbyggnad 88kvm. , bilder o ritningar kommer inom kort. Innerhöjd 2.7m. Fin byggnad passande som kontor, bostad mm. Klicka här för en principskiss på byggnaden: S4357 planritning här för teknisk information:S5600 Modulhuset Kloss 1.0 och här för K-snitt: k snitt kloss
- Gavel med fönster från grupprum/kontor mm
- Entré
- Grupprum
- Kontorsmodul rum ca 57kvm
- WC
_______________________________________-
***SÅLD***S4328 fd Danslokal 488kvm Fin byggnad till t ex skola, kontor, föreningslokal, träningslokal eller annat. Innerhöjd 2.7m. Denna säljer vi inkl. demontage, inplastning för transport och lastning på bil.Den står nu utanför Göteborg. En stor, fin byggnad bestående av 11 enheter som relativt enkelt byggs samman igen på ny plats. Klickar här för planritning: S4328 planritning och här för produktspecifikation: S5600 Modulhuset Kloss 1.0
***SÅLD***S4343 Platskontor 300kvm i Täby. Fin och välskött kontorsbyggnad. Reception, lounge, kontorslandskap, sex ljusa kontorsrum, konferensrum, stort kök m matplats, stort rum som idag används som gym, fyra WC mm. 8.4 x 36.1m (12 volymelement á 8.4×3 m). Nya luftvärmepumpar (värme/kyla), nytt isolerat innertak, nya golv mm. Pris:1.150.000kr ex moms 595.000kr ex moms (1.960kr/kvm ex moms) Flytt till självkostnad. Klicka här för planritning: S4343 planritning
***SÅLD***S4350 Mindre förskolebyggnad om 133kvm. By år: ca 2010. Innerhöjd 2.7m. Denna fina byggnad med bra sadeltak finns nu till försäljning. Tre enheter om 3.6m x 12.1m. Fler bilder och info kommer. Passar t ex som bostad, kontor, föreningslokal, förskola mm. Vi kan ombesörja flytt till självkostnad. Klicka här planritning: S4350 planritning
- Planritning kontorsmoduler S4350 Modulhuset
***SÅLD***S4327 Förskolebyggnad om 700kvm. Fin skolbyggnad med mottagningskök. Innerhöjd 2.7m. Denna säljer vi inkl. demontage, inplastning för transport och lastning på bil. En stor, fin byggnad bestående av 16 enheter som relativt enkelt byggs samman igen på ny plats. Klicka här för ritning S4327 plan- o fasad och här för produktspecifikation: S5600 Modulhuset Kloss 1.0
***SÅLD***S4301: Skolbyggnad 352kvm. 2009. 12.1 x 29.4m. Byggnaden består av åtta enheter där varje modul är 12.1 x 3.6m. Innerhöjd 2.7m. Fyra klassrum, fyra WC, en RWC m dusch, grupprum, personalrum, kök, städ mm. Klicka här för att se planritning: S4301 planritning och här för fasad: S4301 fasadritning
***SÅLD**S4324 Fd boendebyggnad mm 281kvm Yttermått: 9.7 x 29m. 8-9 sovrum/kontor, kök och allrum, gemensamma badrum, tvättstuga mm. Inga stora synliga fel mer än allmänt slitage. Pris: 150.000kr ex moms inkl demontage, inplastning för transport samt kranlyft på bil. Objektet finns i Nynäshamn. Klicka här för plan- o fasadritning: https://modulhuset.se/wp-content/uploads/2024/07/s4324-plan-o-fasadritn.pdf
***SÅLD**S4323 Kontorsbyggnad, vårdbyggnad 176kvm. Mycket fräsch fd mottagning. Ljus och luftig med stora fönster. Lämplig som t ex kontor, vård- el djurmottagning, laboratorium mm. Yttermått: 18.4 x 9.6m. Säljes inkl demontage. Vi kan ombesörja flytt till självkostnad. Klicka här för planritning: S4323 planritn
***SÅLD***S4320 48 sovrum, egna badrum mm Byggnad i ett eller två plan. By år 2018. 48 fullutrustade sovrum/hotellrum med eget badrum, säng, skrivbord och skåp mm. Varje rum är 9kvm. Dessutom fyra större samlingsrum med vardera kök, matplats, soffor och bord mm. Säljes inkl demontage och lastning på bil. Enheterna kan t ex ställas upp såsom på bilder eller som på ritning.
***SÅLD***S4329: Skolbyggdna 130kvm Mindre förskolebyggnad 12.1 x 11m. Trevlig liten skolbyggnad med skolsal, två grupprum, 3 WC mm.
***SÅLD**S4309: Förskolebyggnad 330kvm 34.3 x 9.6m. Mkt fin och ljus byggnad med stora öppna ytor. Klicka här för planritning: S4309 plan- o fasad och här för infoblad så länge: S5700 C20 infoblad 1.0
***SÅLD**S4282: Kontorsbyggnad mm 265kvm. Fin renoverad och uppdaterad kontorsbyggnad. Stor entré, flertal kontor, konferensrum, WC/RWC, dusch, kök, bra ventilation mm. Se ritning för mer info. Denna byggnad står i Enköping färdig att flytta för annan verksamhet. Klicka här för fasadritning:S4282 plan o fasad omb.
***SÅLD**S4313: Förskolebyggnad/kontor 740kvm från 2014. 2 x 370kvm. 12.1 x 30.5m. Innerhöjd 2.75m. Stora öppna ytor, 10st WC/RWC, personalrum, förberett med anslutning för kök mm mm. Denna är prissatt för snabb försäljning. Klicka på bilderna nedan för större format Klicka här för ritning plan 1: S4313 plan 1 och här för plan 2:S41313 plan 2
***SÅLD**S4310: Skolbyggnad 225kvm ca 2005. 12.3 x 18.5m. Byggnaden består av fem enheter á 12.3 x 3.6m som demonteras enkelt och flyttas till ny plats på en krypgrund. Två klassrum, grupprum, personalrum, tre st WC/HWC, ventialtionsanläggning mm. Säljes inkl demontage, inplastningen för transport och kranlyft på bil. För plan- o fasadritning, klicka här: S4310 planritning
***SÅLD***S4305: Förskolebyggnad om 700kvm från 2009. Fantastisk vinkelbyggnad med sadeltak, mycket trevligt utformad med stora, höga fönster. Fyra avdelningar, stora personalutrymmen, mottagningskök, separat diskrum, ett flertal större och mindre rum, 10st WC/RWC, två skötrum, expedition mm. Vattenburen värme färdig att koppla till t ex fjärrvärme, välutrustat fläktrum mm mm. Fler bilder o info kan mailas. Vi kan ombesörja flytt till självkostnad. Klicka här för planritning: S4305 plan- o fasadritn
***SÅLD***S4278: Fin skolbyggnad i två plan om tot ca 850kvm. Förskola, kontor mm. Flertal stora och mindre rum, personalutrymmen, förråd, välutrustat mottagningskök, fullutrustat diskrum, 8WC/RWC mm. Säljes inkl demontage, inplastning, kranlyft på bil samt transport södra och mellersta Sverige, därefter miltillägg. Kontakta oss för fler bilder och info. Klicka här för planritning: S4278 plan
***SÅLD***S4295: Boendebyggnad 550kvm. Fin byggnad från 2009. Lämplig som personalboende, vårdboende, vandrarhem, kontor mm.15-20 sovrum, personalutrymmen, kontor, konferens, kök, matsal, vardagsrum, badrum, wc mm. Vi kan ombesörja flytt till självkostnad. För planritning, klicka här:S4295 planritning och för fasader klickar ni här: S4295 fasadritning Klicka på bilder för större format.
S4308: Boendebyggnad om 184kvm. 2004. Demonterad byggnad färdig att hämta utanför Linköping. Innerhöjd 2.7m. Hämtas snarast, pris 25.000kr ex moms. Se infoblad för mer info: S4308 infoblad
***SÅLD***S4311: Kontorspaviljong på Gotland 61kvm. Trevlig kontorsbyggnad m fyra kontorsrum. Två moduler á ca9.6 x 3.1m. Säljes inkl demontage och lastning på bil. Klicka här för plan- o fasadritning: S4311 plan- o fasad

***SÅLD***S4299: Skolbyggnad/kontor om 267kvm. 12.1 x 22m. Innerhöjd 2.7m. Byggnaden består av sex enheter där varje modul är 12.1 x 3.6m. Två stora klassrum, fyra grupprum, tre WC, städ mm.Säljes inkl. demontage, inplastning för transport, kranlyft på bil samt transport 10 mil från Stockholm. Flyttas senast december. Klicka här för att se planritningen: S4299 planr
***SÅLD***S4298: Skolbyggnad/kontor om 265kvm. 12.1 x 21,9. Byggnaden består av sex enheter där varje modul är 12.1 x 3.6m. Innerhöjd 2.7m. Tre klassrum, fyra WC, tre grupprum, städ mm. Säljes inkl. demontage, inplastning för transport, kranlyft på bil samt transport 10 mil från Stockholm. Bilder kommer men liknar övriga skolbyggnader. Flyttas dec/jan. Klicka här för att se planritning: S4298 planritning
***SÅLD***S4293 fd Förskolebyggnad 133kvm. 11 x 12m. Sadeltak. Bestående av tre enheter om 12.1 x 3.6m. Innerhöjd: 2.7m. Vattenburen värme. Välisolerad lika övriga byggnader. Entré, flera stora och mindre rum, kök, teknik, 2-3 WC mm. Klicka här för planritning:vS4293 plan- o fasadritn För större bilder nedan, klicka på resp. bild.
***SÅLD***S4285: Skolbyggnad/kontor om 790kvm. 12 x 65m. Innerhöjd 2.7m. Byggnaden kan delas. Varje enhet är 3.6×12.1m. Mkt fin byggnad med flertal stora salar, grupprum, hallar, WC, förråd mm. Säljes inkl demontage och lastning på bil. Klicka här för ritningar o skisser: S4285 100 S4285 200
***SÅLD***S4286: Skolbyggnad/kontor om 352kvm. 12 x 30m. Mkt fin byggnad med bla fyra stora salar, fyra grupprum, hallar, sex WC, förråd mm. Innerhöjd 2.7m. Säljes inkl demontage och lastning på bil. Klicka här för ritningar o skisser: S4286 300 , S4286 200 , S4286 100
***SÅLDA***S4289 1-7: Manskapsbodar. 7st manskapsbodar: Entrédel med 2st WC mm, flera kontorsrum, omklädningsrum, duschar, omkl. skåp, konferensrum, kök m matplatser mm.
***SÅLD***S3391: Skolbyggnad om ca 614kvm Riktigt fin och ovanligt stor skolbyggnad från 2001 innehållande bl a fem klassrum, flertal grupprum, lärarum m kök, nio WC/RWC mm. Denna fina byggnad är tillgänglig för flytt i sommar. Demontage, inplastning, kranlyft på bil och transport kring Stockholm ingår i priset. Tillägg för längre avstånd. Klicka här för plan- o fasadritning: S3991 plan- & fasad
***SÅLD*** S4244: Kontorsbyggnad i toppskick, tre våningar. 780kvm. Detta är ett unikt tillfälle att införskaffa en toppmodern kontorsbyggnad i tre plan från 2012/13. De är i 3 plan (260 m2 i varje plan, varje plan är sammansatt av 7st ”moduler”, och innefattar då kontorsrum (olika storlekar i varje plan), trapphus, hiss (max 5 personer), toaletter i varje plan samt pentry, städskrubb och ventilationsrum på mellanvåning. Stomme är av trä. Fasad är av trä/plåt. Fönster är av 3-glas typ, (vartannat öppningsbart) och fönstren mot söder har markiser, samt utanpåliggande persienner invändigt. Uppvärmning radiatorer, vattenburet. Ventilation är mekanisk till/frånluft med värmeväxlare. Takbeklädnad är duk, plats för solceller. Kanalisation med 240 VAC och datanätverk i varje rum. Golvbeklädnad av Linolium. Skicket är mycket gott, nära nyskick.
Vi kan ombesörja demontage, transport och montage.
Klicka här för plan- & fasadritningar: S4244 ritningar
- OLYMPUS DIGITAL CAMERA
- OLYMPUS DIGITAL CAMERA
- OLYMPUS DIGITAL CAMERA
- OLYMPUS DIGITAL CAMERA
- OLYMPUS DIGITAL CAMERA
***SÅLD***: S4262: Elegant förskolebyggnad 645kvm. Kontor el förskola. Fyra avdelningar, personalavdelning, tillagningskök mm. Detta är en fantastiskt trevlig förskolebyggnad och ett tillfälle som sällan återkommer. Säljes inkl demontage, inplastning, kranlyft på bil samt transport södra och mellersta Sverige, därefter miltillägg. Kontakta oss för fler bilder och mer info. S4262 plan- o fasad
***SÅLD***:S4268: Fint B&B, vandrarhem, övernattningsbyggnad om ca 650kvm 435kvm (1/3 såld). Mycket fräsch och välunderhållen fd B&B-byggnad säljes för avflyttning. Byggnaden består av tre avdelningar – 18 länkade moduler innehållande bl a 15-18 rejäljt tilltagna sovrum, kök, matrum, 9 WC, flera duschar, 3 tvättrum mm. Nyrenoverat 2015. Vi kan ombesörja flytt till självkostnad. Unikt tillfälle. För större bilder, klicka på bilderna. För ritningar, klicka här (enhet 1-6 är såld): S4268 planritningar 2.5
***SÅLD***: S4248: Lägenhetsmoduler 38kvm BOA. 24st lägenheter, byggnadsår 2003. Invändig takhöjd 2.45m. Yttermått: 4 x 11m. Demonterade och färdiga att hämta. Utsatta för vattenskada, säljes som renoveringsobjekt. Flytt till självkostnad. Klicka här för planritning: S4248 plan o fasad
***SÅLD***: S4256: Matsalsbyggnad om 178kvm. Innerhöjd 2.7m. Klicka för planritning: S4256 Edsbergsskolan

***SÅLD***S4264: Skol-/kontorsbyggnad om 225kvm. Byggnadsår: 2005. Fd mkt välhållen förskola med två avdelningar, grupprum, toaletter, tekniska utrymmen mm. Säljes inkl demontage och inplastning, färdiga att lasta på bil för transport från Vårgårda. För planritning, klicka här: S4264 plan
***SÅLD***S4257: Skolbyggnad om 178kvm. Innerhöjd 2.7m. Demonterad och inplastad, redo att lasta. För planritning, klicka här: S4257 planritning

***SÅLD***S4265: Platskontor, kontorsbyggnad i två plan om tot 215kvm (2×107.5kvm). Den mkt trevliga byggnaden fördelar sig på sex kontorsrum, konferensrum, kontorslandskap, toaletter och tekniska utrymmen. Önskas en annorlunda fasad kan den kläs med fasadskivor t ex såsom den sista bilden nedan visar. Säljes inkl demontage, inplastning, kranlyft på bil samt transport mälardalen, därefter ev miltillägg. För ritning, klicka här: S4265 8xC10
***SÅLD***S4261: Skolbyggnad el. kontor t ex. om 357kvm Fyra stora rum, 6st WC/RWC, fyra grupprum, förråd mm. Fd Komvux lokaler i fint skick. Klicka här för planritning: S4261plan
***SÅLD***S4263: 9st manskapsbodar Vi behöver mer plats, så passa på! Dessa sex arbetsbodar säljer vi i ett paket för 215.000kr ex moms.
***SÅLD***S4241: Förskolebyggnad eller kontor 320kvm Tillverkad 2012. Trevlig planlösning med stora fönster. Mkt fint skick på hela byggnaden. Två kompletta avdelningar med stora personalutrymmen. Två kök, fem st WC/RWC. Vattenburen värme. Klarar dagens energikrav, för permanent el temporärt bygglov. Klicka här för planritning: S4241 plan o fasad
***SÅLDA***S4226A+B+C Tre förskolebyggnader om 515kvm st., tre avdelningar, från 2006. Vinkelbyggnaden är mycket trevligt utformad med stora, höga och spröjsade fönster. Kapprumsinredd för 3 x 20 barn. Tre avdelningar, stora personalutrymmen, mkt välutrustat förskolekök, ett flertal större och mindre rum med en stor och ljus öppen yta centralt i byggnaden, 8st WC/RWC, vattenburen värme, välutrustat fläktrum mm mm. Byggnaden klarar morgondagens energikrav. Klicka här för ritning: S4226 plan- o fasad
***SÅLD***S4252: Förskolebyggnad/kontor mm 2x460kvm Väldigt fin byggnad i två plan om 460m2 styck, tot ca 920m2. Innerhöjd: 2.7m. 10+10 enheter om ca 3.6×12.2m samt två trapphus. Idag fem stora avd., kontor, rum, mottagningskök, 13WC/HWC mm mm. Bra FTX-vent.anläggning. Denna byggnad flyttas v36. Pris senast v35 720.000kr ex moms inkl demontering och transport inom Stockholms län, annars milpålägg. Planlösning hittar ni här: S4252 planritning
***SÅLD*** S4236: Förskolebyggnad/skola/kontor 265kvm Två avdelningar med stora utrymmen, två kök, fyra WC, vattenburen värme, idag från kulvert från befintlig skola. Vent.aggregat på vind med el-batteri. Klicka här för plan- o fasadritning: S4236 plan o fasad
***SÅLD***S4221: Skolbyggnad om ca 243kvm. Bra och fräsch byggnad med två stora klassrum, köksdel i mitten, stor entre med toaletter och förråd mm. Vattenburen värme. S4221 plan o fasad
***SÅLD***S3390: Skol-, förskole-/kontorsbyggnad 265kvm Devereras komplett med två st ventilationsaggregat. Ritning: S3390 plan- o fasad
***SÅLD***S4223: Skol-/kontorsbyggnad om ca 178kvm Fin byggnad där man har satt upp ett par extra väggar för skolledning, sjuksyster mm. Dessa kan tas bort för att återställa till skola. S4223 plan
***SÅLD***S3395: Skol-kontorsbyggnad 390kvm Mkt fin och välunderhållen skolbyggnad från 2005. Säljes inkl demontage, inplastning och kranlyft på bil. Klicka här för ritningar: S3395 plan o fasad
***SÅLD*** S3394c: Kontors-/skolbyggnad 280kvm 2005 Väldigt fin kontorsbyggnad med stora, öppna ytor reda att anpassar för era behov, t ex kontor, skola, butik mm. Komplett med ventilationsaggregat. Säljes inklusive demontage, inplastning och kranlyft på bil. S3394c plan o fasad
***SÅLD*** S3392: Skolbyggnad 380kvm Byggnad från 1993. Passande såsom kontor, föreningslokal mm. Se ritning här: S3392 plan- o fasad 1.0
***SÅLD*** S5610 Boendemoduler typ Containex, 2016: Vi har för omgående leverans 50st boendebodar samt 2st servicemoduler från ca 2016.
Bobodar plan fasad S5610 Bobodar uppställning S5610
***SÅLD*** S2468 Boendebyggnad med reception, kontor mm 626kvm 1999. Bra byggnad, tillgänglig omedelbart. Innehållande bl a reception, 15 sovrum, kök, matsal, flertal kontor, konferensrum, 8 WC/RWC, 7 dusch, tvättstuga mm. Vandrarhem? Kontor? Volymbygge bestående av 13 enheter á 3.6 x 13.3m. För ritning, klicka här S2468 plan o fasad
***SÅLD*** S3389A Skol-/kontorsbyggnad 260kvm 1996. Tre avdelningar som är i drift t o m juni. Tillgänglig i juli för avflytt. Komplett skolbyggnad med ventilation. Klicka här för ritning: S3389A + B
***SÅLD*** 1500kvm Kontors-/skolbyggnad S1500, uppställd i Stockholm: i två plan. Ursprungligen två byggnader, 500 + 1.000kvm. 500kvm är sålda så vi har nu 1.000kvm kvar, egen ventilationsmodul, egen inkommande el osv. Absolut toppskick på hela byggnaden. Nu kvar: 14 enheter samt 1 ventilationsmodul. Stort antal kontor. Stort kök med dubbla kyl/frys, dubbla diskmaskiner mm + ett separat pentry. 8 st WC/HWC. Dusch. Ett flertal förråd, datarum, städutrymmen mm mm. Två entréer samt en groventré. Säljes komplett med befintligt möblemang (höj/sänkbara skrivbord, stolar, konferensmöbler mm). Vi kan ombesörja flytt av byggnaden till självkostnadspris. Idag demonterad, inplastad klar för avhämtning från vår uppställningsyta i Upplands Väsby. Planritningar: S1000:1500 plan 1 S1000:1500 plan 2
***SÅLD***S3382: Kontors-/skolbyggnad 245kvm Idag kontorsbyggnad med två entréer, kontor, klassrum/grupprum, två WC/RWC, två dusch, omklädningsrum, kök, fikarum, förråd, städ mm. Består av nio st enheter om ca 9x3m. Innerhöjd 2.6-2.7m. Bra, demonterbar taklösning. S3382 planritn 1.2
***SÅLD***S3381: Skolbyggnad 350kvm Bestående av 8st moduler á 12.3 x 3.6m. Innerhöjd 2.7m. Säljes omgående till förmånligt pris.
S3381 Paviljonger Flexi 21 Flexi 27 Relationshandling 2016-10-04
***SÅLD***S3386: Kontors-/skolbyggnad 475kvm Föreningslokal mm. Arlanda Stad. Bestående av 16st moduler á 12.1 x 2.45m. Innerhöjd 2.7m. Flertal klassrum, grupprum, kontor, förråd, 5st WC/HWC, FTX-vent. Säljes komplett med bra taklösning. Innerväggar kan tas bort för att få större rum vid behov. Vi ombesörjer transport om så önskas.
***SÅLD***S3385: Skolbyggnad 410kvm: Skolbyggnad alternativt kontor från 2001.15st moduler á 9.1 x 3m. Innerhöjd 2.7m. Kan även delas upp och säljas i två delar. Den står idag fyra mil söder om Stockholm. Planritningar: S3385 plan 1.a S3385 plan 1.b
***SÅLD***S460: Kontors-/Skolbyggnad, ca 460kvm: Tvåvåningsbyggnad om ca 460kvm från 2005. Innerhöjd 2.7m. Flera klassrum, grupprum, kontor, städskrubbar, 4st WC/HWC mm. Planritningar: A 002 Planer
***SÅLD***Skol-/kontorsmoduler, platskontor ca 180m2:Fin skolbyggnad i ett plan från 2002. Innerhöjd 2.7m. Klassrum, kontor, kök, WC o HWC, ventilationsanläggningar mm. Byggnaden säljes inklusive demontage och inplastning, redo för transport. Mått: 5st ca 9.5 x 3.5m samt 1st WC/HWC-modul ca 5.0 x 3.5m.
***SÅLD***Skolbyggnad-/kontorsmoduler ca 940m2: Fin och komplett skol-/kontorsbyggnad i två plan från 2002. Många klassrum, grupprum, kontor, WC, HWC, möblemang/inredning, ventilationsanläggningar mm. NZ1000ritning
***SÅLD***Platskontor el. Skol-/kontorsmoduler ca 900m2: Bra kontors-/skolbyggnad i två plan med plåtfasad från 2006. Innerhöjd ca 2.6m. Ett flertal klassrum, grupprum, kontor, WC, HWC, möblemang/inredning, vent.rum mm.
***SÅLDA*** Ett antal Hotellriggar med 44 rum mm, ca 800kvm :“Hotellriggen 44” består av 32 moduler á 8.4 x 3m.
***SÅLD*** Skolbyggnad ca 460kvm: Fin skolbyggnad alt. kontor i två plan om tot ca 460kvm. Tillverkare är Moelven år 2003. Säljes demonterade, inplastade och färdiga att hämta.
***SÅLD*** Manskapsbodar: 20st arbetsbodar om tot 440kvm. Varje bod är 2.6×8.45m. Ca 18 kontorsrum, samlingsrum, kök m matplats, dusch, WC, förråd mm. Säljes komplett med kontorsmöbler.
***SÅLD*** Kontorsbyggnad 1150m2: Kontorsmoduler om ca 2x575m2. Innerhöjd ca 2.7m. Demonterbar hiss. Isolerglas. Ventilationsanläggning. Säljes omgående därav priset. Omedelbar visning, även lördag o söndag, av objektet som finns på Arlanda flygplats.
***SÅLD*** Skolbyggnad med kök, matsal, klassrum, grupprum, lärarrum, 3+1WC, förråd mm. Byggyta ca 330kvm. Innerhöjd ca 2.7m. I drift till juni, byggnaden skall vara borta per den 31/8. Vi kan ombesörja transport.
3-vånings kontorsbyggnad om ca 1860kvm. Totalt 43 moduler. Unik och exklusiv byggnad. Tillverkade 2007. Tidigare uppställt på Karolinska Institutet i Stockholm. Demonterad och uppställd på uppställningsplats i Upplands Väsby. Klar för avhämtning. Kontakta oss för fler bilder och ritningar.

***SÅLD*** Förskola: 2-plansbyggnad om ca 1360m2. Välisolerad byggnad med isolerglas. Yttermått: ca 10.3×3.6m. Innerhöjd ca 2.70m. Demonterad och inplastad på uppställningsplats i Upplands Väsby. Säljes även i minder delar. Storlek moduler ca 37kvm. Klar för avhämtning. Kontakta oss för fler bilder, ritningar och pris.
***SÅLD*** Kontorsbyggnad ca 2000kvm. Norrköping. Byggnad i två plan. Aluminiumfönster med isolerglas/3-glas. Stort antal kontorsrum, även konferensrum, grupprum, kök, WC mm. Ventilationsanläggning, brandtrappor mm ingår. Fasaden kan, om den inte passar in i omgivningen, istället kläs med t ex träpanel. Säljes inkl demontering och inplastning för transport. Transport och återmontering kan tillhandahållas. Kontakta oss för mer fler bilder, ritning och pris. Detta objekt är ett fynd för rätt köpare! ***SÅLD ***
***SÅLD*** Förskola ca 515kvm: En-plans skolpaviljong/kontorsbyggnad om ca 515kvm komplett med klassrum, grupprum, kök/matrum, lärarrum, förråd, ventilation etc. Denna står monterad i Vällingby. Kontakta oss för mer info.
***SÅLD*** Kontorsmoduler ca 260kvm: Butiks- och kontorsmoduler inkl nyare värmeanläggning, kök, WC mm.
Mfl.



















































































































































































































































































































































































































































































