Modulhuset
Byggnaden kommer färdig till er.
Meny
Hoppa till innehåll
Hem
Aktuellt
Nyproduktion
Begagnat
OUTLET
Galleri
Kontakt
Sök
Sök efter:
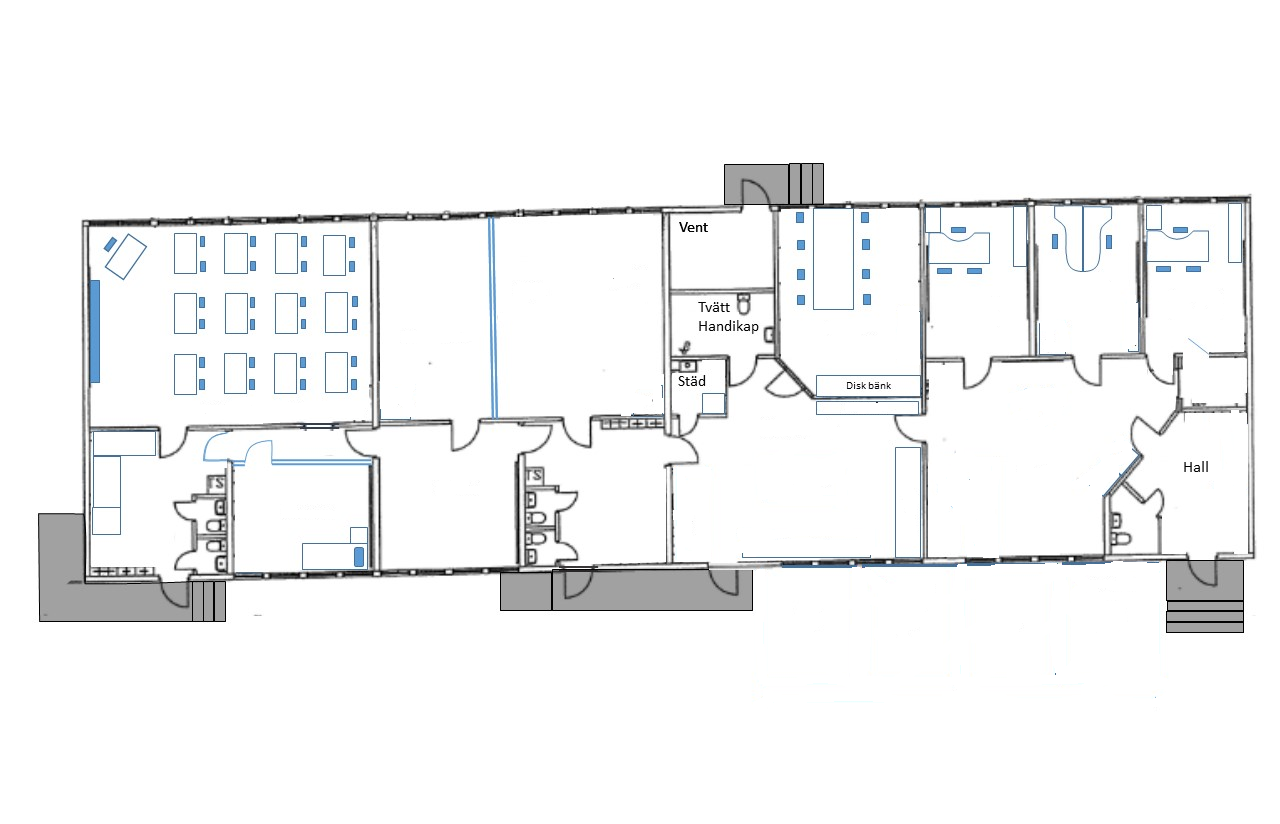
Skiss Arlandastad
Modulhuset
Registrera
Logga in
Kopiera kortlänk
Rapportera detta innehåll
Hantera prenumerationer