Här säljer vi välisolerade volymelement till stark reducerade priser. Det kan t ex bero på mer slitage än vanligt, att vi behöver flytta byggnaden inom kort, någon skada eller annat. Vi upplyser alltid om de fel vi känner till! Ofta lämpliga som kontor, föreningslokal, ombyggnad till bostad mm.
Fler fina byggnader till rätt priser hittar ni under Begagnat.
S4370 2x326kvm Skolbyggnad renoverad och ombyggd 2016 för att klara bygglovskraven med bl a ny ventilation kök, toaletter mm. Byggd av Flexator 1988. Komplett med skolsalar, grupprum, kök, matsal, bibliotek, två RWC samt flera WC. Klicka här för planritning bottenplan: S4370 plan 0 och här för övre plan: S4370 plan 1 Vi kan ombesörja flytt till självkostnad.


















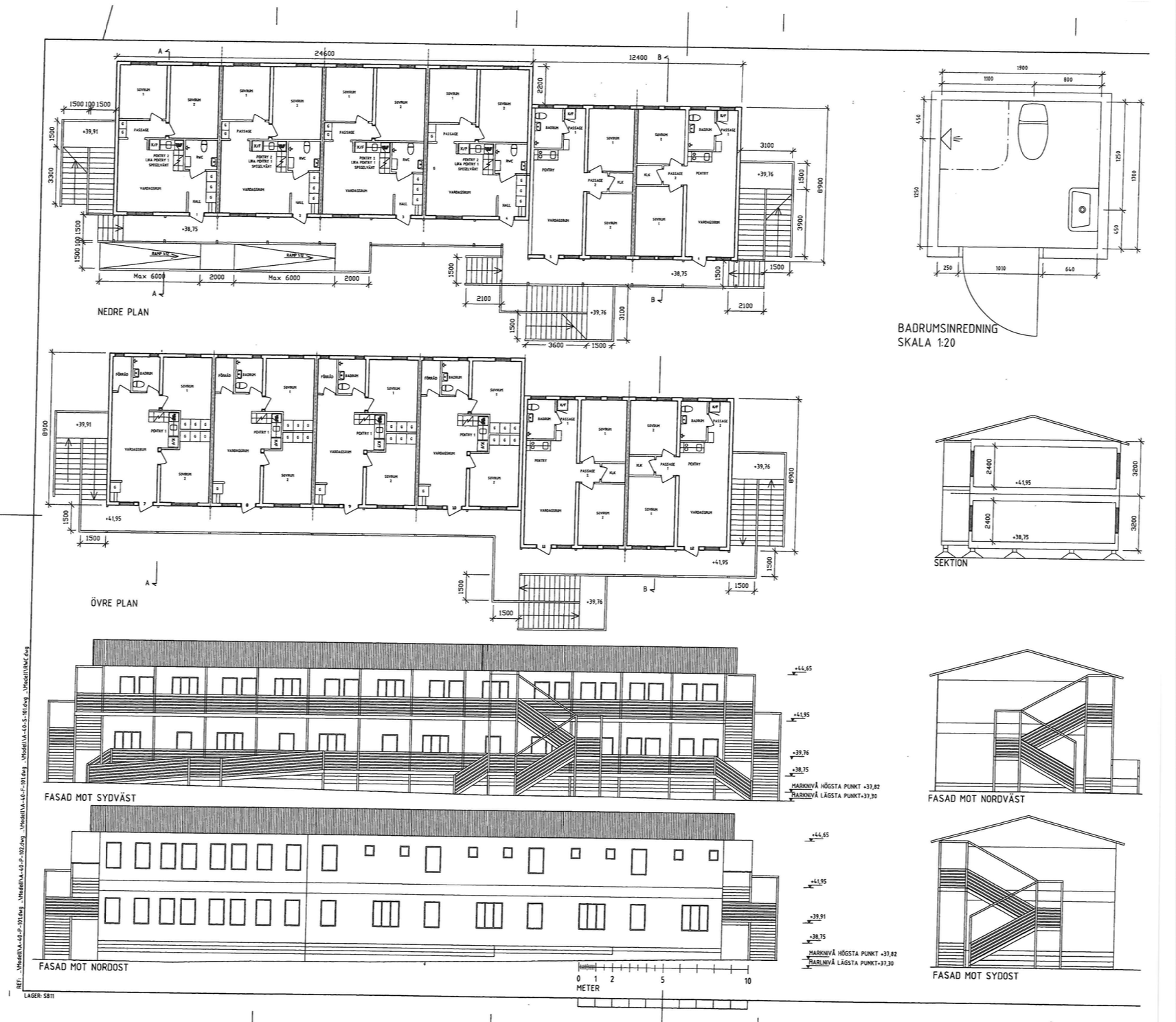
S4373 Evakueringslägenheter 16 moduler bildar 8-9 lägenheter, de flesta med två sovrum. Se bilagd ritning. Säljes endast samtliga 16 bodar tillsammans för 448 000kr ex moms (28.000kr/st ex moms). Vissa är renoverade och i bra skick, en del kräver mer eller mindre renovering. Vi kan ombesörja transporten av samtliga från Norrtälje där de är uppställda till väldigt förmånligt pris.














___________________________________________________________________________________________________
S4372 Förskolebyggnad. BYA 67kvm. Innerhöjd: 2.35m. Byggnaden består av tre enheter som flyttas med kranbil. Tillgänglig i juni då förskolan stänger för sommarlov. Idag uppställd i Hallstahammar. Pris som den står: 35.000kr









S4361 4+4 Peronalbodar för övernattning. 12 sovrum med plats för två sängar i varje rum, 2 kök, toaletter o duschar. Modulmått: 3x8m. Höjd: 3.05m. Innerhöjd: 2.5m. Uppställda i Stockholm. Pris: 240.000kr ex moms (30.000kr/st ex moms vid köp av samtliga).








_________________________________________________________________
S4327 5+1 C10-moduler 162kvm Nu säljer vi ett platskontor med flera kontorsrum, WC, teknik mm.Varje modul är 9x3m, totalt yttermått 9x18m. Dessa står utanför Örnsköldsvik, redo att transporteras till ny plats. Pris: 55.000kr/st ex moms. Klicka här för produktbeskrivning: https://modulhuset.se/wp-content/uploads/2025/10/s5500-c10-beskr-.pdf







___________________________________________
S4338 4st moduler ca 9.2x3m. Innerhöjd 2.7m. Säljes styckevis. Lämpliga att bygga om till kontor, bostad mm. Klicka här för info: S4338 TEKNISK BESKRIVNING


__________________________________________
S4339 10st moduler ca 9x3m. Innerhöjd 2.7m. Säljes styckevis. Lämpliga att bygga om till kontor eller bostad mm. Klicka här för info: S4339 Teknisk beskrivning



__________________________________________
S4326 Kontorsbyggnad ca 1600kvm Kontorsbyggnad i tre plan. Innerhöjd ca 2.4m. Denna står nu i Göteborg. Vi ombesörjer flytt till självkostnadspris. Säljes MYCKET förmånligt till rätt köpare med egen mark: 750kr/kvm ex moms, inklusive demontage, inplastning för transport och lastning på bil. Säljes i sin helhet! Fler bilder och filmer mailas till intresserade.
Klicka här för planritningar: S4326 plan 1 S4326 plan 2 S4326 plan 3
Klicka här för fasadritningar: S4326 fasad 1 S4326 fasad 2